首页
3D模型
SU模型
贴图
CAD图纸
软件库
国外单体模型
PM高精度模型库
3D插件
3dmax工具箱
鲸云库
云转换
更多
牛模教程
牛模全景
设计案例
工作室
效果图接单
悬赏模型
版权登记
充值VIP
登录
注册
找人做设计
上传赚钱
3D模型
SU模型
上传贴图
CAD施工图
软件插件
合成全景模型
设计案例
当前位置:
3D模型牛模网
>
CAD施工图下载
>
CAD素材图库
>
立面图库
大类 :
全部
家装施工图
别墅
家居
公寓
样板房
其他
建筑施工图
办公建筑
商业建筑
旅游建筑
通信建筑
民用建筑
科教文卫建筑
交通运输建筑
其他
CAD素材图库
工装施工图
美容美发
网吧
洗浴城
酒店&宾馆
商店商场
厂房
餐饮
展厅
酒吧
其他
医疗
办公
KTV
会所
售楼部
小类 :
全部
平面图库
立面图库
配件图库
家具图库
园林图库
综合图库
饰线脚线图库
相关搜索:
cad2020版经典模式插件
更多>>
筛选:
全部
免费
收费
排序:
热门
最新
以图搜图
预览图
收藏
格栅景墙CAD立面图
ID:307775
收藏
中式传统摆件招财工艺品摆件
ID:296995
收藏
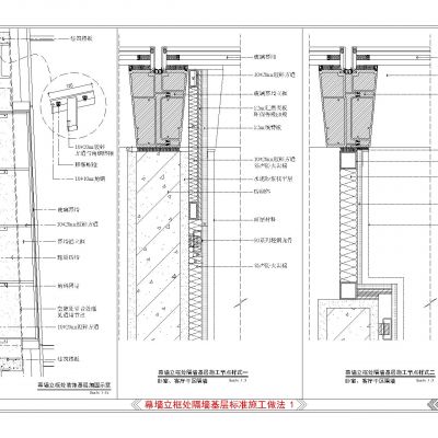
幕墙立框处隔墙基层标准施工做法节点
ID:276497
收藏
精品CAD客餐厅卧室厨卫立面模块
ID:247027
收藏
整木楼梯扶手配件 等CAD图库
ID:235054
收藏
欧式门窗CAD图集
ID:233135
收藏
高档欧式法式美式别墅客厅餐厅背景
ID:232531
收藏
大理石 背景墙 CAD图集
ID:232525
收藏
整木家居 护墙板搭配CAD图库
ID:232511
收藏
钢化玻璃阳光房cad图
ID:231996
收藏
五金配件CAD图集
ID:231847
收藏
衣柜护墙板生产深化图纸CAD设计素材
ID:231218
收藏
自动滑动门图纸
ID:308019
收藏
床立面图
ID:307823
收藏
门板CAD设计模块
ID:306789
收藏
商业人物CAD图库
ID:306277
收藏
欧式楼梯扶手CAD图库
ID:235058
收藏
家居整木家装标准化设计模板
ID:233719
收藏
石材背景墙素材水刀拼花素材图库常用CAD
ID:229663
收藏
建筑门窗表
ID:181584
收藏
石材水刀拼花线条 CAD图块
ID:309644
收藏
水上飞机
ID:307900
收藏
客厅CAD立面图库
ID:307640
收藏
整木墙板 背景墙CAD图库
ID:235022
收藏
客厅餐厅立面模块 CAD精选模型已设随层
ID:235016
收藏
欧式豪华双开门CAD图集
ID:234863
收藏
CAD门花纹图案
ID:233104
收藏
欧式电视背景墙CAD图库
ID:232975
收藏
动态块 形象墙 背景墙 装饰墙 CAD图库
ID:232529
收藏
电视背景 沙发背景 CAD图库
ID:232527
收藏
法式护墙板 欧式护墙板 CAD图库
ID:232518
收藏
整木定制木门垭口门套窗套CAD图库
ID:229661
收藏
整木定制护墙板背景墙CAD图
ID:228944
收藏
背景墙素材图库CAD
ID:228428
收藏
一群树
ID:309343
收藏
别墅窗户立面cad
ID:308089
收藏
欧式门窗装饰框架图纸
ID:308014
收藏
抽斗设计CAD模块
ID:306775
收藏
新版人物合集
ID:276191
收藏
门型框套花纹图案CAD图库
ID:235087
收藏
金龙龙纹CAD图库
ID:235076
收藏
金属玻璃栏杆、楼梯栏杆CAD图库
ID:235064
收藏
展厅背景墙CAD图集
ID:235051
收藏
中式别墅整木墙板 CAD图库
ID:235024
收藏
整木家居卧室背景墙CAD图库
ID:234788
收藏
石材木材整体电视墙 CAD图库
ID:232979
收藏
家居整木展厅 门头图纸CAD 图集
ID:232537
收藏
床背景44例
ID:232524
收藏
一群树
ID:309342
收藏
敦煌飞天CAD
ID:308079
收藏
实木定制CAD图库
ID:306739
收藏
矿棉板(动态块)吊顶及各类材质收边节点
ID:247269
收藏
大理石电视墙背景墙cad素材
ID:243388
收藏
客厅,厨卫,卧室立面图
ID:240211
收藏
75款CAD图石膏线与实体效果图
ID:235584
收藏
垭口格栅屏风CAD图库
ID:235578
收藏
欧式构件、罗马柱、栏杆、角花、窗合集
ID:235077
收藏
古代美女CAD图库
ID:235070
收藏
欧式 美式 电视背景墙精选CAD图库
ID:235048
收藏
卧室背景墙CAD图集
ID:235042
上一页
1
2
3
4
5
6
7
下一页
充值
会员
充值
客服
客服
热线
联系客服:
工作时间:
周一至周五:13:30-22:30
粉丝群
交流
Q群
效果图接单3群
加入
粉丝1群
加入
牛模学堂1群
加入
服务号
关注
微信
扫一扫关注我们
签到
每日
签到
反馈
用户
反馈
返回
顶部
请留下您的宝贵建议
反馈内容
(*必填)
联系方式
(*必填)
提 交